Bairros de Natal

O bairro Candelária foi criado, oficialmente, através da Lei n° 4.330 promulgada em 5 de abril de 1993. Bairro que nasceu conjunto habitacional, empreendimento realizado pelo Instituto de Orientação às Cooperativas Habitacionais (INOCOOP/RN). Entregue em 1975, não foi nada fácil os...

Ana Tersuliano
|

Omar O’Grady, prefeito de Natal, contrata por 100 contos de réis o arquiteto italiano Giacomo Palumbo para elaborar o Plano Geral de Sistematização da Cidade de Natal, o Plano Palumbo. O projeto, sempre louvado, leva em consideração até a dimensão espiritual...

Ana Tersuliano
|

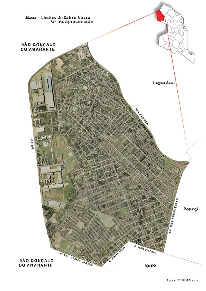
Em Natal de 1940, esta região, era pouco povoada, predominando o matagal. Lugar ermo, distante dos bairros centrais, Nova Descoberta, era conhecida como Coréia dos Índios. O antigo topônimo foi eternizado, pelo forrozeiro Potiguar Elino Julião, nos versos da música “forró...

Ana Tersuliano
|

O Bairro Lagoa Nova, hoje região nobre da capital potiguar, era no passado “caminho de ligação entre o centro de Natal e a base aérea de Parnamirim Field”, estrada construída durante a Segunda Guerra Mundial, quando a cidade foi batizada de...

Ana Tersuliano
|

Os limites e a história deste bairro se entrelaçam com Igapó. Localizado as margens do rio Potengi, foi na década de 1970 até meados da década de 1980, produtor de sal e camarões. O pesquisador Olavo de Medeiros Filho, em Terra...

Ana Tersuliano
|

Antiga Aldeia Velha, terra dos índios potiguara, hoje Igapó. Segundo Cascudo (1968, p.91) este nome significa água que invade, enchente, alagado. Não há registro sobre os motivos da mudança do antigo topônimo, como informa Souza (2008). Lugar de resistência indígena, nesta...

Ana Tersuliano
|

Localizada na Região Administrativa Norte, é uma das mais belas paisagens do litoral potiguar. Conhecida pela “ginga com tapioca”, iguaria que é, praticamente, sinônimo de Redinha. Câmara Cascudo em uma de suas actas diurnas (apud SOUZA, 2008), associa a origem do...

Ana Tersuliano
|

Seu nome é uma homenagem à padroeira de Natal, celebrada no dia 21 de novembro. Na década de 1980, com a construção do conjunto habitacional Parque dos Coqueiros, esta localidade começou a se firmar enquanto bairro. Dispõe de diversos equipamentos públicos,...

Ana Tersuliano
|

A origem deste topônimo está no nosso maior rio, o Potengi. Rio pequeno no seu nascedouro, mas gigante ao encontrar o mar. Cascudo (1968, p.117) em Nomes da Terra, informa a presença dos índios potiguares nas margens esquerda do rio Potengi....

Ana Tersuliano
|

Segundo Cascudo (1968, p.109): “Lugar na margem esquerda do Rio Potengi, diante da cidade do Natal. De ipajuçara, lagoa da palmeira Juçara […] Denomina comumente locais de lagoas e alagadiços”. Criado pela Lei nº 4.328/93. A ocupação e formação do bairro...

Ana Tersuliano
|